Page suivante
Page précédente
Claye-Souilly (77410)

Appartement 2 pièce(s) 1 chambre(s) 45 m²

1
130 000 €
Réf LAD2414

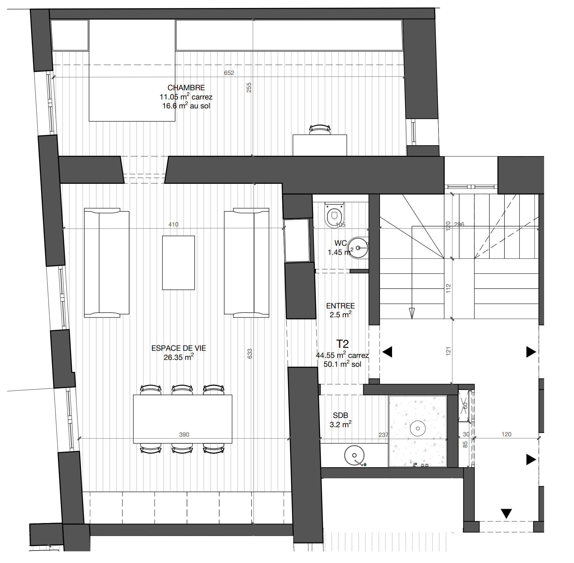
À Claye-Souilly, nous vous proposons l'achat de cet appartement T2, dans un environnement calme, avec un jardin extérieur dont vous avez la jouissance exclusive. L'appartement se trouve au 1er étage dans un bâtiment de 2 niveaux. Construction en 1947. Propriété comprenant un espace cuisine, un salon de 11.74m², une chambre et une salle d'eau.La surface intérieur habitable fait 45m² (dont 32m² loi Carrez) ainsi que 11m² de superficie en jouissance exclusive. Le double vitrage assure la tranquillité des occupants. Pour ce qui est de la taxe foncière, elle est de 266 € annuels. Pour en savoir plus, votre agence immobilière The Wedge se fera un plaisir de vous aider. Une habitation intéressante à un prix attractif pour une première acquisition immobilière.

Bilan énergétique

Diagnostics énergetiques
Consommation énergétique
A B C D E F G
Emission de gaz à effet de serre
A B C D E F G

Logement à consommation énergétique excessive : classe F

Montant estimé des dépenses annuelles d'énergie pour un usage standard est compris entre 960 € et 1 340 € . Prix moyens des énergies indexés sur les années 2021, 2022 et 2023 (abonnements compris).

A propos de ce bien Caractéristiques de ce bien
  • Surface 45 m²
  • carrez 32 m²
  • séjour 11,74 m²
  • 1 chambre(s)
  • 1 salle(s) d'eau
  • construit en 1947
  • cuisine séparée (équipée)
  • Chauffage individuel : radiateur (electrique)
  • exposition Sud
  • 2 niveau(x)
  • 1er étage
  • 2 étage(s)

Composition

Composition de ce bien

Rez-de-chaussée

  • dégagement 4.14 m²
  • salon/sejour 11.74 m²
  • cuisine 11.13 m²
  • salle d'eau 5 m²
  • chambre

Info copro

Copropriété
  • Copropriété Oui
  • Lot n° 6
  • Nombre de lots 14
  • Quote part annuelle des charges 404,88 €
  • Plan de sauvegarde Non
  • Statut du syndic Pas de procédure en cours

Financier

Informations financières
Prix de vente 130 000 € Les honoraires d'agence seront intégralement à la charge du vendeur
Charges 85,87 €
Taxe foncière annuelle 266 €

Simulation

Calcul des mensualités
* Champs obligatoires
The Wedge Agence